物件一覧に戻る
[中古]戸建 4DK リフォーム済 大阪市住之江区北島3丁目
1 / 1
売買

[中古]戸建 4DK リフォーム済 大阪市住之江区北島3丁目

販売中
大阪市住之江区北島3丁目
南海本線 住ノ江駅 徒歩20分
販売価格
1,300万円
駐車場あり リフォーム済
住宅ローン支払い例
当店提携紀陽銀行・期間35年・変動金利・ボーナス払無し
元利均等 実質金利0.775% 借入1,300万円として
月々支払 35,350
※金融機関の審査等によりご希望に添えない場合がございます。諸費用は含まれておりません。

リフォーム情報

リフォーム
工事完了
リフォーム年月
調査中
・内容調査中

物件情報

種別
戸建
取引形態
売買
ステータス
販売中
住所
大阪市住之江区北島3丁目
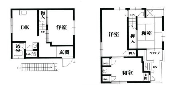
間取り
4DK
土地面積
66.11㎡
各階面積
1階:32.28㎡ 2階:30.63㎡
構造
木造 2階建
築年月
1981年(昭和56年) 12月
土地権利
所有権
用途地域
第一種住居地域
都市計画
市街化区域
建ぺい率
80%
容積率
200%
他の法令上の制限
準防火
地勢
現況
空家
引渡し
相談
駐車場
なし
取引様態
仲介
備考
この物件が気になりましたか?

お気軽にお問い合わせください

関連物件

同じ種別(戸建)の募集中物件

[新築]戸建 3LDK 仲介手数料半額対象 駐車1台可 堺市堺区永代町2丁 売買
戸建
[新築]戸建 3LDK 仲介手数料半額対象 駐車1台可 堺市堺区永代町2丁
堺市堺区永代町2丁
3,690 万円
[中古]戸建 4LDK 仲介手数料半額対象 リフォーム済 駐車2台可(車種制限有) オール電化 堺市北区金岡町 売買
戸建
[中古]戸建 4LDK 仲介手数料半額対象 リフォーム済 駐車2台可(車種制限有) オール電化 堺市北区金岡町
堺市北区金岡町
3,498 万円
[中古]戸建 4LDK 仲介手数料半額対象 リフォーム中 駐車2台可 オール電化 堺市西区草部 売買
戸建
[中古]戸建 4LDK 仲介手数料半額対象 リフォーム中 駐車2台可 オール電化 堺市西区草部
堺市西区草部
2,698 万円