物件一覧に戻る
オーナーチェンジ物件 かもめ第一コーポ12号棟9階部分 3LDK 仲介手数料半額対象 表面利回り6.48% 大阪市住之江区南港中3丁目
1 / 1
売買

オーナーチェンジ物件 かもめ第一コーポ12号棟9階部分 3LDK 仲介手数料半額対象 表面利回り6.48% 大阪市住之江区南港中3丁目

販売中
大阪府大阪市住之江区南港中3-4-12
OsakaMetro南港ポートタウン線 ポートタウン西駅 徒歩3分
販売価格
1,480万円(税込)
SPECIAL OFFER
仲介手数料割引
半額
エレベーター 駐車場あり

収益情報

表面利回り
6.48%
想定賃料
現況月額賃料:80,000円
物件分類
オーナーチェンジ

物件情報

種別
収益マンション
取引形態
売買
ステータス
販売中
住所
大阪府大阪市住之江区南港中3-4-12
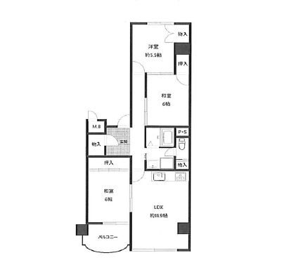
間取り
3LDK
面積
71.64㎡
構造
SRC造 14階建(9階)
築年月
1982年(昭和57年) 3月
土地権利
所有権
用途地域
第一種中高層住居専用地域
総戸数
176戸
管理費
月額 7,710円
修繕積立金
月額 13,180円
管理方式
全部委託・日勤
現況
賃貸中
引渡し
相談
駐車場
なし
オートロック
なし
ペット
不可
エレベーター
あり
取引様態
仲介
手数料割引
半額
備考
・2023年8月リフォーム済み ・法人契約にて賃貸中

周辺地図

この物件が気になりましたか?

お気軽にお問い合わせください

関連物件

同じ種別(収益マンション)の募集中物件

オーナーチェンジ物件 エスリード平野 仲介手数料半額対象 売買
収益マンション
オーナーチェンジ物件 エスリード平野 仲介手数料半額対象
大阪府大阪市平野区西脇2-7-15
面積 86.45㎡
3,580 万円
売買
収益マンション
オーナーチェンジ物件 クレアシティ平野 仲介手数料半額対象
大阪府大阪市平野区平野西1丁目11-31
面積 75.88㎡
3,080 万円
オーナーチェンジ物件 エスリード平野本町 仲介手数料半額対象KB-5 売買
収益マンション
オーナーチェンジ物件 エスリード平野本町 仲介手数料半額対象KB-5
大阪府大阪市平野区平野本町3-3-23
面積 65.81㎡
2,980 万円