物件一覧に戻る
[中古]戸建 5LDK 仲介手数料20%OFF 堺市堺区錦綾町1丁
1 / 2
売買
外観
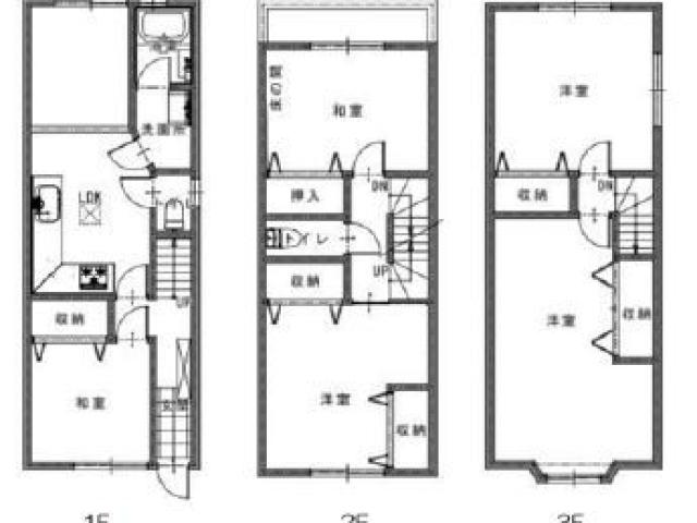
間取り

[中古]戸建 5LDK 仲介手数料20%OFF 堺市堺区錦綾町1丁

販売中
堺市堺区錦綾町1丁
阪堺電軌阪堺線 綾ノ町駅 徒歩5分
販売価格
1,980万円
SPECIAL OFFER
仲介手数料割引
20%OFF
駐車場あり
住宅ローン支払い例
当店提携紀陽銀行・期間35年・変動金利・ボーナス払無し
元利均等 実質金利0.775% 借入1,980万円として
月々支払 53,840
※金融機関の審査等によりご希望に添えない場合がございます。諸費用は含まれておりません。

リフォーム情報

リフォーム
工事未実施
リフォーム年月

物件情報

種別
戸建
取引形態
売買
ステータス
販売中
住所
堺市堺区錦綾町1丁
間取り
5LDK
土地面積
52.66㎡
建物面積
121.08㎡
構造
木造 3階建
築年月
1994年(平成6年) 11月
土地権利
所有権
用途地域
準工業地域
都市計画
市街化区域
私道負担
あり
セットバック
必要
建ぺい率
60%
容積率
200%
他の法令上の制限
準防火
地勢
接道1
西側 公道 幅員約2.9m
現況
居住中
引渡し
相談
駐車場
なし
取引様態
仲介
手数料割引
20%OFF
備考
・下水道隣地から引き込み(隣地との覚書あり) ・容積率オーバー、再建築時セットバック必要

特記事項

売主契約不適合責任免責
この物件が気になりましたか?

お気軽にお問い合わせください

関連物件

同じ種別(戸建)の募集中物件

[新築]戸建 3LDK 仲介手数料半額対象 駐車1台可 堺市堺区永代町2丁 売買
戸建
[新築]戸建 3LDK 仲介手数料半額対象 駐車1台可 堺市堺区永代町2丁
堺市堺区永代町2丁
3,690 万円
[中古]戸建 4LDK 仲介手数料半額対象 リフォーム済 駐車2台可(車種制限有) オール電化 堺市北区金岡町 売買
戸建
[中古]戸建 4LDK 仲介手数料半額対象 リフォーム済 駐車2台可(車種制限有) オール電化 堺市北区金岡町
堺市北区金岡町
3,498 万円
[中古]戸建 4LDK 仲介手数料半額対象 リフォーム中 駐車2台可 オール電化 堺市西区草部 売買
戸建
[中古]戸建 4LDK 仲介手数料半額対象 リフォーム中 駐車2台可 オール電化 堺市西区草部
堺市西区草部
2,698 万円