仲介手数料30%OFF対象物件※当店規定仲介手数料より30%OFFになります。物件の価格交渉がある場合、割引ができない事があります。
-
-
当店が購入時仲介手数料を割引できる理由を大公開♪
当店は住之江区の安立商店街で開業してから継続して仲介手数料半額の物件を出しています。 全ての物件ではないですが「仲介手数料半額対象物件」や「仲介手数料30%OFF対象物件」などがあります。 今回は当店 ...
住宅ローン支払い例
当店提携紀陽銀行 期間35年 変動金利 ボーナス払無し
元利均等 実行金利0.775% 借入13,490万円として
元利均等 実行金利0.775% 借入13,490万円として
月々支払 約 366,821円
※銀行等の審査等によりお客様のご希望に添えない場合がございます。
※銀行等の審査等によりお客様のご希望に添えない場合がございます。
交通:OsakaMetro御堂筋線 天王寺駅 徒歩約5分
リフォーム工事に関して
| 工事 | リフォーム工事完了 |
| 年月 | 2026年(令和8年)1月 |
| 内容 | ・システムキッチン新調 ・ユニットバス新調 ・便器、温水洗浄便座新調 ・給湯器新調 ・洗面化粧台新調 ・建具新調 ・フローリング貼替 ・クロス貼替 ・給湯機の新規交換は設備の納品後になります。 ・エアコン一基新設 |
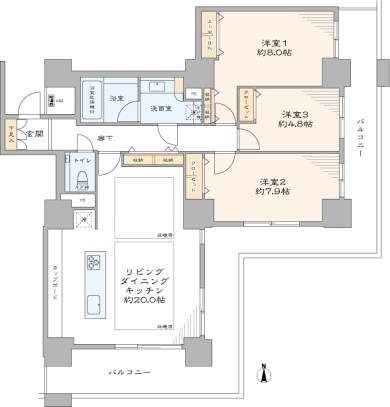
物件詳細情報
| 専有面積 | 93.32㎡ | バルコニー面積 | 33.56㎡ |
| 土地権利 | 所有権 | 構造等 | RC造40階建31階部分 |
| 総戸数 | 401戸 | 用途地域 |
商業地域 |
| 築年数 | 2004年(平成16年)9月 | 間取り | 3LDK |
| 修繕積立金 | 月額:35,270円 | 管理費 | 月額:20,440円 |
| 管理方式 | 全部委託・日勤 | 現況 | 空家 |
| 引渡し | 相談 | 駐車場 |
あり(空き状況は要確認) 月額20,000円~29,000円 |
| 専用庭 | ー㎡ | オートロック | あり |
| ペット | 可(飼育には条件があります) | 取引様態 | 仲介 |
| ルーフバルコニー使用料 | ー | 専用ポーチ使用料 | ー |
| 専用庭使用料 | ー | 町会費/自治会費 | あり ・月額200円(任意) |
| その他費用 | ー | ||
| 備考 |
・引渡し後売主による2年間の契約不適合保証付き ・バイク置場あり ・駐輪場あり |
||
物件所在地
あべのグラントゥール


