仲介手数料半額対象物件※当店規定仲介手数料より半額になります。物件の価格交渉がある場合、割引ができない事があります。
-
-
当店が購入時仲介手数料を割引できる理由を大公開♪
当店は住之江区の安立商店街で開業してから継続して仲介手数料半額の物件を出しています。 全ての物件ではないですが「仲介手数料半額対象物件」や「仲介手数料30%OFF対象物件」などがあります。 今回は当店 ...
住宅ローン支払い例
当店提携紀陽銀行 期間35年 変動金利 ボーナス払無し
元利均等 実行金利0.775% 借入3,280万円として
元利均等 実行金利0.775% 借入3,280万円として
月々支払 約 89,190円
※銀行等の審査等によりお客様のご希望に添えない場合がございます。
※銀行等の審査等によりお客様のご希望に添えない場合がございます。
交通:OsakaMetro四つ橋線 北加賀屋駅 徒歩約8分
リフォーム工事に関して
| 工事 | リフォーム工事完了 |
| 年月 | 2025年(令和7年)11月 |
| 内容 | ・バルコニー防水工事 ・建具新調 ・ハウスクリーニング ・間取り変更 ・外壁一部塗装 ・水回り全新調 |
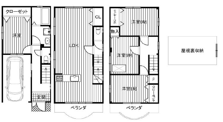
物件詳細情報
| 土地面積 | 53.60㎡ | 建物面積 | 1階:39.60㎡ 2階:39.60㎡ 3階:39.60㎡ |
| 私道負担 | セットバック | 済または不要 | |
| 土地権利 | 所有権 | 構造等 | 鉄骨造3階建 |
| 築年数 | 1997年(平成9年)5月 | 間取り | 4LDK |
| 容積率 | 200% | 建蔽率 | 80% |
| 用途地域 |
第一種住居地域 |
現況 | 空家 |
| 都市計画 | 市街化区域 | 他の法令上の制限 | 準防火 |
| 地勢 | - | 取引様態 | 仲介 |
| 引渡し | 相談 | 接道 | 南側 公道 幅員約8m |
| 駐車場 | あり | 町会費/自治会費 | - |
| その他費用 | ー | ||
| 備考欄 | ・引渡し後売主による2年間の契約不適合保証付き |
||

